当サイトではCookieを使用します。Cookieの使用に関する詳細は「
プライバシーポリシー
」をご覧ください。
OK
このサイトはJavascriptが無効の場合、正常に表示されません。
ブラウザの設定で、JavaScript を有効にして下さい。
TOP
新着情報
会社案内
事業紹介
実績紹介
採用情報
スタッフブログ
TOP
トップページ
News
新着情報
About
会社案内
Service
事業紹介
Archives
実績紹介
Recruit
採用情報
Blog
スタッフブログ
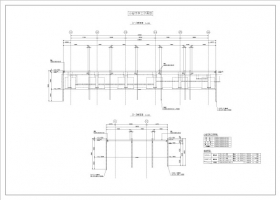
切梁式山留
ホーム
実績紹介
切梁式山留
規模
掘削面積:45m×20m 掘削深度:5m
用途
建築構造物の基礎建設
CONTACT US
お電話でのお問い合わせ
0985-58-1211
お問い合わせ
お問い合わせはこちら
お見積り・ご依頼
お見積り・ご依頼はこちら
お見積り
・
ご依頼
お問い合わせ