当サイトではCookieを使用します。Cookieの使用に関する詳細は「
プライバシーポリシー
」をご覧ください。
OK
このサイトはJavascriptが無効の場合、正常に表示されません。
ブラウザの設定で、JavaScript を有効にして下さい。
TOP
新着情報
会社案内
事業紹介
実績紹介
採用情報
スタッフブログ
TOP
トップページ
News
新着情報
About
会社案内
Service
事業紹介
Archives
実績紹介
Recruit
採用情報
Blog
スタッフブログ
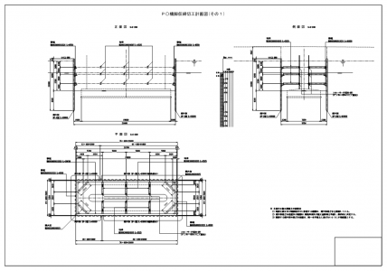
橋脚仮締切工(切梁式 + スルーサー固定)
ホーム
実績紹介
橋脚仮締切工(切梁式 + スルーサー固定)
形式
切梁式 + スルーサー固定
規模
掘削面積:7.6m×21.6m、掘削深度:6.0m
用途
橋脚仮締切工(耐震補強工事)
CONTACT US
お電話でのお問い合わせ
0985-58-1211
お問い合わせ
お問い合わせはこちら
お見積り・ご依頼
お見積り・ご依頼はこちら
お見積り
・
ご依頼
お問い合わせ